Адрес: г. Нижний Новгород, ул. Почаинская ,д.35 Смотреть все контакты
(831) 414-10-48
8 (920) 012-94-75
ПРИМЕРЫ НАШИХ РАБОТ
ЗАГОРОДНЫЙ ДОМ, НИЖЕГОРОДСКАЯ ОБЛАСТЬ, 2019Г.
Выполненные проекты
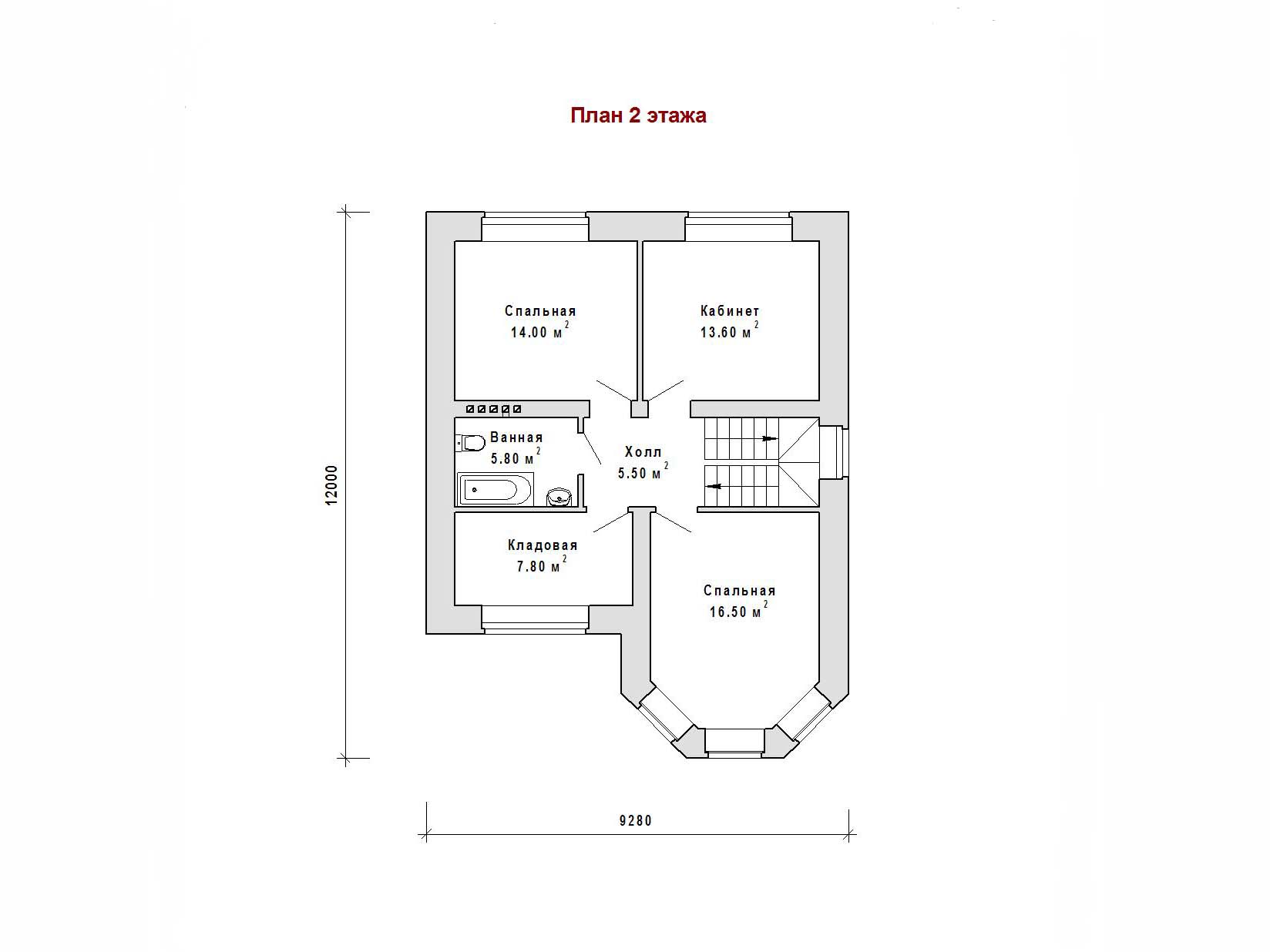
Площади помещений
Общая:114 м²
Жилая:71 м²
Характеристики
Фундамент:Железобетоная плита
Стены:Керамблок
Перекрытия:Ж/б плиты
Крыша:Металлочерепица
ЗАКАЗАТЬ ЗВОНОК

Закажите обратный звонок

Введите Ваш номер телефона и в течение
15 минут мы свяжемся с вами

Ваше имя на русском

Ваш телефон

*Заполнение заявки Вас ни к чему не обязывает
*Все данные конфиденциальные

О компании

АК-ПРОЕКЦИЯ  - архитектурная мастерская, специализирующаяся на проектировании загородных домов с 2004г.

Основное направление нашей деятельности — индивидуальное проектирование частных домов.

Сотрудниками нашей Проектной группы за данный период времени было выполнено более 500 проектов только частных домов.

Дома, построенные по нашим проектам Вы можете увидеть в: с. Безводное, к.п.Земляничная поляна,

к.п.Бурцево,ТИЗ Надежда, д. Анкудиновка, д.Афонино, д.Новопокровское, Сормово (Высоково),

д.Ржавка,  д.Утечино, к.п.Ромашково, к.п.Чистые ключи, к.п.Боталово, п.Неклюдово, д.Мякотинское и др., а также в самом г.Н.Новгороде .

На сегодняшний день накоплен большой опыт в работе с клиентами из других регионов "дистанционно".

Отзывы клиентов

Заказывали проект нашего дома в компании "ПРОЕКЦИЯ". Работой коллектива остались очень довольны. Коллектив профессиональный, молодой, энергичный, легко воплощает идеи в жизнь. Сам проект составлен достаточно подробно. Мы смогли контролировать строителей и сами закупать строительные материалы, что позволило сэкономить затраты, а это не мало важно!  Планировка дома получилась удачная.Нас "услышали", а мы смогли воплотить в жизнь. В доме уже живем. Спасибо "ПРОЕКЦИИ"!

Марина Викторовна Варнавина

Нужен был индивидуальный проект с интересным архитектурным решением, чтобы дом выделялся из общей застройки ,но без излишеств.

- Когда начали строиться, добавили комнату над гаражом, частично изменили фасады, и соответственно, изменения в проекте делать пришлось уже за доплату.

Стоимость проекта отбилась, все сложные элементы рассчитывались без огромного запаса прочности, ну и + экономия времени и нервов.

Андрей Цветков
Смотреть все отзывы (8)

Закажите обратный звонок

Введите Ваш номер телефона и в течение
15 минут мы свяжемся с вами

Ваше имя

Ваш телефон

Нажимая кнопку "Отправить", я даю своё согласие ак-проекция на обработку моих персональных данных, в соответствии с Федеральным законом от 27.07.2006 года №152-ФЗ "О персональных данных", на условиях и для целей, определенных Политикой конфиденциальности.

*Заполнение заявки Вас ни к чему не обязывает
*Все данные конфиденциальные

Шаг {{step}} из 5
Какой дом Вам нужен?
У вас есть участок?

Укажите ширину участка:

м.
Какая площадь дома Вам необходима?
Укажите какие дополнительные помещения/элементы необходимы в проекте?
Оставьте контактные данные и мы отправим вам на электронную почту варианты проектов!
Нажимая кнопку "Отправить", я даю своё согласие "ПРОЕКТМАРКЕТ" на обработку моих персональных данных, в соответствии с Федеральным законом от 27.07.2006 года №152-ФЗ "О персональных данных", на условиях и для целей, определенных Политикой конфиденциальности.