Адрес: г. Нижний Новгород, ул. Почаинская ,д.35 Смотреть все контакты
(831) 414-10-48
8 (920) 012-94-75

Готовый проект дома К-167

СТОИМОСТЬ ПРОЕКТА

Описание проекта:

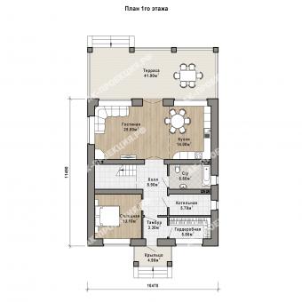
Площади помещений

Общая площадь
172.0 кв.м.
Жилая площадь
99.0 кв.м.
Высота подвала
м.
Высота 1 этажа
3.0 м.
Высота 2 этажа
3.0 м.
Высота 3 этажа
м.
Высота 4 этажа
м.
Размеры дома
10.47 x 11.49 м.
Количество спален
5
Расположение котельной
Отдельное помещение

Характеристики

Фундамент
Железобетонная плита
Стены
Газобетонный блок.Отделка -кирпич
Перекрытия
Ж/б плиты
Крыша
Металлочерепица

Дополнительно

Паспорт проекта (подробно)
6 000 руб.
Генплан (привязка дома к участку) (подробно)
4 000 руб.

Архитектурно-строительная часть

  • общие данные (перечень чертежей)
  • пояснительная записка,технико-экономические показатели
  • планы этажей с размерами комнат и площадями
  • фасады здания с отметками
  • разрезы здания с описанием конструкций (поперечный и продольный)
  • ограждающие конструкции и перегородки
  • фундамент. сечения, узлы, спецификация материалов
  • перекрытия. сечения, узлы, спецификация материалов
  • крыша. план кровли, план стропил. разрезы, сечения, узлы, спецификация материалов
  • кладочные планы этажей с размерами всех простенков, кол-во стенового материала
  • оконные и дверные перемычки
  • вентканалы, дымоходы
  • входные группы
  • ведомость проемов
  • архитектурные узлы
  • порядовка (разрез по стене)
  • лестница, геометрические размеры и узлы
  • объемы материалов

Инженерные сети

Отопление:

  • общие данные и указания
  • поэтажные планы системы отопления
  • аксонометрические схемы систем отопления
  • принципиальная схема котельной, подбор котла, чертежи оборудования котельной
  • спецификация оборудования

Водоснабжение и канализация:

  • общие данные и указания
  • поэтажные планы систем ГВС и ХВС
  • поэтажные планы систем канализации
  • аксонометрическая схема систем ХВС и ГВС , канализации
  • спецификация оборудования

Электроснабжение:

  • общие данные и указания
  • расчетная схема электроснабжения
  • планы этажей с электрооборудованием
  • поэтажные планы групповых сетей
  • планы этажей. освещение
  • молниезащита
  • схема уравнивания потенциалов
  • спецификация оборудования
ЗАКАЗАТЬ ЗВОНОК

Закажите обратный звонок

Введите Ваш номер телефона и в течение
15 минут мы свяжемся с вами

Ваше имя на русском

Ваш телефон

*Заполнение заявки Вас ни к чему не обязывает
*Все данные конфиденциальные

О компании

АК-ПРОЕКЦИЯ  - архитектурная мастерская, специализирующаяся на проектировании загородных домов с 2004г.

Основное направление нашей деятельности — индивидуальное проектирование частных домов.

Сотрудниками нашей Проектной группы за данный период времени было выполнено более 500 проектов только частных домов.

Дома, построенные по нашим проектам Вы можете увидеть в: с. Безводное, к.п.Земляничная поляна,

к.п.Бурцево,ТИЗ Надежда, д. Анкудиновка, д.Афонино, д.Новопокровское, Сормово (Высоково),

д.Ржавка,  д.Утечино, к.п.Ромашково, к.п.Чистые ключи, к.п.Боталово, п.Неклюдово, д.Мякотинское и др., а также в самом г.Н.Новгороде .

На сегодняшний день накоплен большой опыт в работе с клиентами из других регионов "дистанционно".

Отзывы клиентов

Заказывали проект нашего дома в компании "ПРОЕКЦИЯ". Работой коллектива остались очень довольны. Коллектив профессиональный, молодой, энергичный, легко воплощает идеи в жизнь. Сам проект составлен достаточно подробно. Мы смогли контролировать строителей и сами закупать строительные материалы, что позволило сэкономить затраты, а это не мало важно!  Планировка дома получилась удачная.Нас "услышали", а мы смогли воплотить в жизнь. В доме уже живем. Спасибо "ПРОЕКЦИИ"!

Марина Викторовна Варнавина

Нужен был индивидуальный проект с интересным архитектурным решением, чтобы дом выделялся из общей застройки ,но без излишеств.

- Когда начали строиться, добавили комнату над гаражом, частично изменили фасады, и соответственно, изменения в проекте делать пришлось уже за доплату.

Стоимость проекта отбилась, все сложные элементы рассчитывались без огромного запаса прочности, ну и + экономия времени и нервов.

Андрей Цветков
Смотреть все отзывы (8)

Закажите обратный звонок

Введите Ваш номер телефона и в течение
15 минут мы свяжемся с вами

Ваше имя

Ваш телефон

Нажимая кнопку "Отправить", я даю своё согласие ак-проекция на обработку моих персональных данных, в соответствии с Федеральным законом от 27.07.2006 года №152-ФЗ "О персональных данных", на условиях и для целей, определенных Политикой конфиденциальности.

*Заполнение заявки Вас ни к чему не обязывает
*Все данные конфиденциальные

Шаг {{step}} из 5
Какой дом Вам нужен?
У вас есть участок?

Укажите ширину участка:

м.
Какая площадь дома Вам необходима?
Укажите какие дополнительные помещения/элементы необходимы в проекте?
Оставьте контактные данные и мы отправим вам на электронную почту варианты проектов!
Нажимая кнопку "Отправить", я даю своё согласие "ПРОЕКТМАРКЕТ" на обработку моих персональных данных, в соответствии с Федеральным законом от 27.07.2006 года №152-ФЗ "О персональных данных", на условиях и для целей, определенных Политикой конфиденциальности.